|
|
|
| |
韩国浦项制铁集团公司 经销特殊钢:SKD11 SKD61 P4 P4M 日本高周波钢业株式会社 经销细微钢:KD11S KD21 KDA1S 钢材部:苏州市吴中区横泾镇马家村工业区木东路8361号 电话:0512-66583973 68585979 81666987 传真:0512-66583997 邮箱: linzhenhua@chinadlz.com 锻造厂:苏州市吴中区临湖镇东山 手机:13962197450
|
|
|
| |
| |
|
|
|
| |
|
|
| |
| |
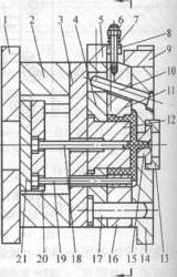
图例解读塑料注射模的组成部件及其作用 |
|
|
| 
注射模结构类型很多,但无论何种结构的模具,大致都由以下几种零部件组成,如图所示(图中:1-动模板,2-垫块,3-动模固定板,4-凸模固定板,5-挡块,6-螺母,7-弹簧,8-滑块拉杆,9-楔紧块,10-斜导柱,11-侧型芯滑块,12-动模凸模型芯,13-定位圈,14-定模板,15-浇口套,16-动模套板,17-导柱,18-拉料杆,19-推杆,20-固定板,21-垫板)。⒈成形零件 成形零件是直接接触塑料以成形制品塑件的部件,其尺寸精度要求较高,是注射模核心部件。如图中的定模板14、动模套板16均作为凹模成形塑件外部形状,而动模型芯12作为凸模成形塑件内部形状、侧型芯滑块11是成形塑件测面孔或形状的。 ⒉浇口系统零件 浇口系统零件主要安装在注射模定模板上,直接与注射机喷嘴接触。如图中的浇口套15主要是将料筒中的熔融塑料填充到模具型腔内并兼起传递注射作用;而定位圈13主要对注射机喷嘴与浇口套15定位时使用。 ⒊推件系统零件 推件系统零件主要使对模具复位及卸出塑件作用。如推杆19固定在固定板20上与垫板21组成推件系统,主要是将塑件推出并兼复位作用;而拉料杆18为拉出浇口废余料杆件。 ⒋结构零件 注射模的结构零件主要包括定模板14、动模板1,主要是固定定模,动模并直接与注射机连接用板;动模套板16是嵌镶动模型芯或直接使塑件成形:动模固定板3是直接固定动模型芯;动模支承板4是防止动模型芯支承用板,又称垫板;而垫块2是调节推件系统活动空间用板。这些零件,将成形零件固定起来,使其成为模具整体。 ⒌侧向分型与抽芯机构零件 侧向分型与抽芯机构零件主要是用来成形塑件凸起、凹孔或孔类形状的。如图中的斜导柱10、挡块5、螺母6、弹簧7、滑块拉杆8、楔紧块9等。在使用时,要求这类零件要动作灵活、可靠。 ⒍导向零件 导向零件包括导柱17、导套或导向孔,主要是决定定、动模相对位置的零件、要求导柱与导销孔配合精度H8/h7。 ⒎调温零件 调温零件主要是控制模具温度,使其达到成形条件。对于热塑性注射模需要加装冷水管道对模具降温,而热固性塑料注射模需要加装加热板,如图所示。 ⒏紧固零件 紧固零件包括内六角螺钉或圆柱销等,主要使各部件联紧在一起,成为整体。同时圆柱销还兼起定位作用。 |
|
|
| |
|
|
|
|